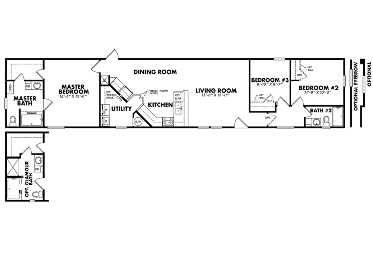
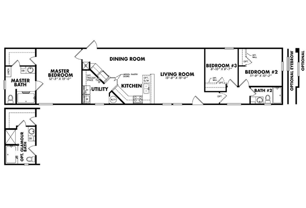
BEDS: 3 BATHS: 2 SQ FT: 1193 W X L: 16′ 0″ x 76′ 0″
SERIAL #:
YEAR BUILT: 2023
PRICE: Call for pricing
This Legacy Heritage Collection home features 1193 square feet of living space, with 3 Bedrooms and 2 bathrooms.
Bathroom Fans: Yes
Ac Ready: Yes
Insulation (Ceiling): R21
Exterior Wall On Center: 16 inches on Center
Exterior Wall Studs: 2 x 4 Exterior Walls 16″ on center
Floor Decking: Tongue and Groove OSB Floor Decking
Insulation (Floors): R11
Floor Joists: 2 x 6
Insulation (Walls): R11
Front Door: house type w/ storm and deadbolt
Rear Door: windowed with deadbolt
Window Type: Aluminum vertical slider
Interior Doors: white 6 panel w/ metal knobs
Safety Alarms: Smoke Detectors Throughout
Vaulted Ceilings: Yes
Window Treatment: mini blinds
Kitchen Cabinetry: picture frame flat panel doors
Kitchen Range Type: name brand
Kitchen Refrigerator: 18 cu. Ft. Refrigerator
Kitchen Sink: Stainless-Steel Kitchen Sink
Electrical Service: 200 AMP
Shut Off Valves Throughout: Yes
Utility Cabinets: Yes
Washer Dryer Plumb Wire: Yes
Water Heater: 30 Gallon Water Heater












































